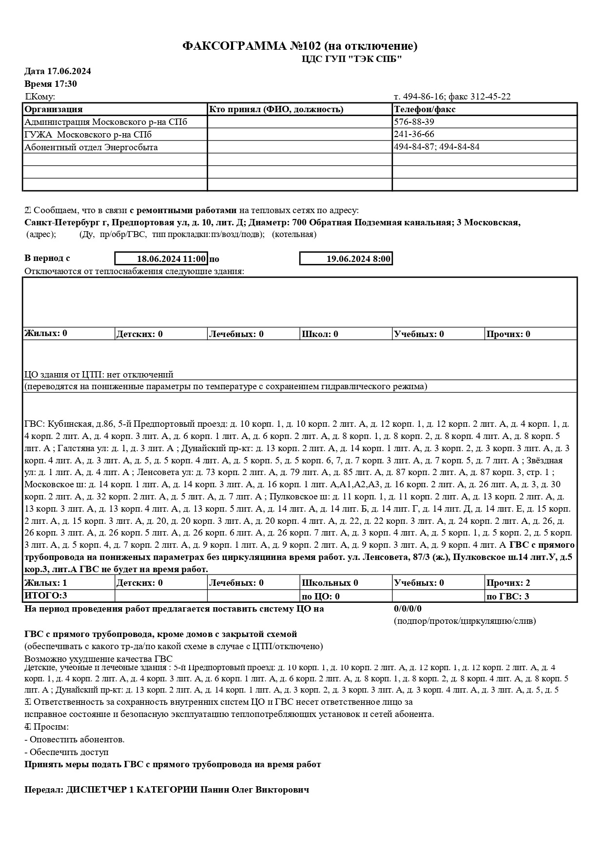
ЦДС ГУП "ТЭК СПБ" ставит Вас в известность об отключении теплоснабжения , с 11:00 18.06.2024 г. по 19.06.2024 г. в связи с ремонтными работами на тепловых сетях по адресу: Предпортовая ул, д. 10, лит. Д; Диаметр: 700 Обратная Подземная канальная; 3 Московская, Предпортовая ул., 2
Под ограничение попадают следующие адреса:
5-й Предпортовый проезд: д. 10 корп. 1, д. 12 корп. 1
Пулковское ш: д. 11 корп. 2 лит. А, д. 15 корп. 2 лит.
